My Work
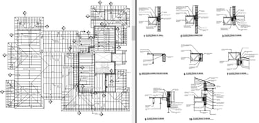
CFS Residential Buildings
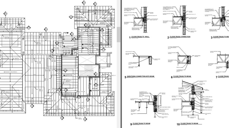
Wood Residential Buildings
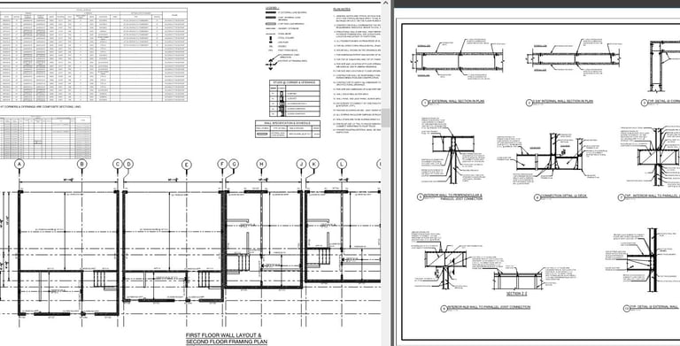
CMU Residential Buildings
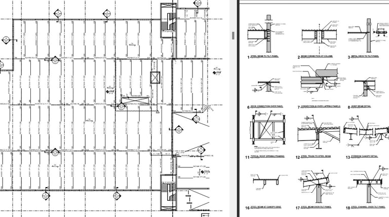
Desing of Tilt-up wall panels And Floor of metal deck & Steel beams


EV / Generator Foundation & Anchor Design


Steel /Precast / CIP Staricase & Railing design


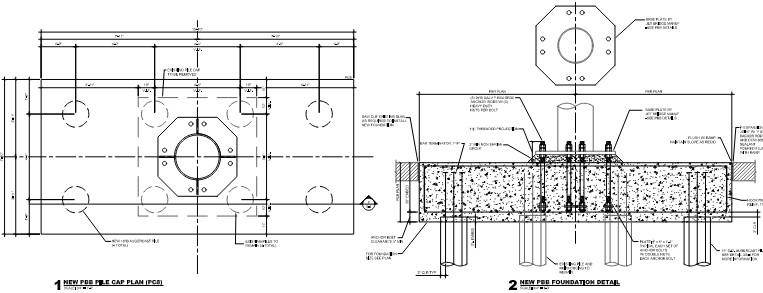
PBB Anchor & Foundation design


Desing of Precast Planks & Shop drawings preparation


Project Delivered
Proudly serving projects across the USA.
Mon-Fri 9am
Wanna talk?
info@arjunmudkondwar.in
+91-7721814110
© 2024. Arjun Mudkondwar
Contact me with any questions or just to say a few nice words ... or mean ones. Up to you .... free will and all